
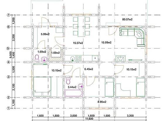
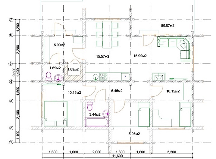
В представленном проекте одноэтажного дома «Гамма» из коллекции «Бунгало» общей площадью 80 кв.м. планировочное решение включает в себя три спальни, просторную гостиную с камином, соединенную с кухней-столовой. Обеденный стол в столовой зоне расположен в эркерном пространстве.
Одной из интересных особенностей этого проекта является разделение спальной и гостевой зон. Дом как бы состоит из двух частей.
Из гостиной может быть организован выход через панорамные стеклянные двери с великолепной теплоизоляцией в зону патио, разделенную выступающим эркером на пространство для отдыха, соединенное с гостиной, и входную группу.












