Проект двухэтажного дома «Карелия» общей площадью 195 кв.м. из коллекции «Шале» имеет гараж на один автомобиль, две террасы и балкон. Навес гаража выходит из под ската основной кровли, что придает крыше эффект каскада.
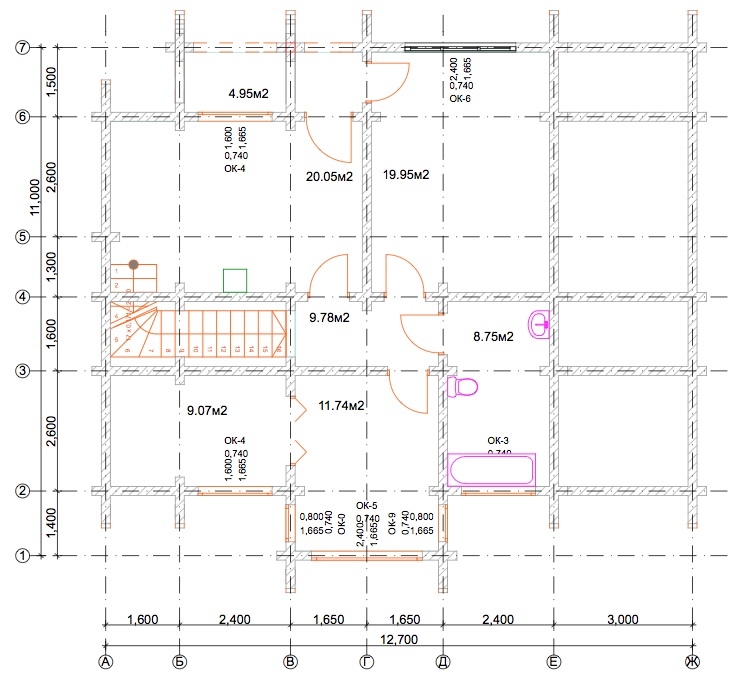
Планировка помещений в этом проекте является по праву одной из лучших. Вход в дом организован со стороны террасы, расположенной непосредственно у гостиной, и со стороны гаража. Котельная имеет отдельный вход с улицы. Гостиная и кухня-столовая объединены в общую зону отдыха с камином.
На первом этаже имеется одна спальня. Помещение санузла площадью аж 9 кв.м. рассчитано на организацию постирочной и гладильной. На втором этаже - три спальни. Две из них имеют выходы на балкон.
Проект «Карелия» сочетает в себе необычный дизайн и удобную для повседневной загородной жизни планировку помещений.











